Zadlabací zámek 536
Kód: 3562Detailní popis produktu
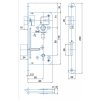
Zadlabací dveřní zámek 536
Specifikace
- dvouzápadový
- bez převodu
- otvor pro dělené štíty
- rozteč/zádlab: 90/80mm
U tohoto zámku se nerozlišuje zda je pravý či levý - otočná střelka.
Doplňkové parametry
| Kategorie: | Zadlabávací zámky |
|---|---|
| Záruka: | 2 roky |
| EAN: | 8595087541154 |
Buďte první, kdo napíše příspěvek k této položce.
Přidat hodnocení
Buďte první, kdo napíše příspěvek k této položce.
.png)

.jpg?67a4f100)
